NATURA MAS ALBA se trata de una vivienda unifamiliar de dos plantas y jardín privado, situada en el entorno natural de la urbanización Mas Alba.
El ambiente en el que se encuentra garantiza una buena calidad de vida, rodeado de naturaleza y baja contaminación.
La promoción ha sido diseñada con las medidas pertinentes a una correcta calidad de aire, niveles de iluminación y ruido, y vistas al exterior, lo que conlleva a que los usuarios dispongan de una mayor confortabilidad, productividad, seguridad y salud.

NATURA MAS ALBA dispone de buena conexión con el municipio de Sitges, el cual cuenta con gran cantidad de servicios culturales, educativos, comerciales, sanitarios y de transporte, que cumplen con las necesidades de los usuarios.
Se trata de una vivienda unifamiliar de dos plantas situadas en el entorno natural de Mas Alba. El volumen se adapta a la topografía existente de la montaña, disfrutando de salida al jardín superior o inferior desde todas las estancias.
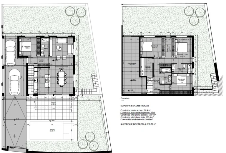
Planta de acceso con espacio de salón-comedor-cocina, un dormitorio doble, y baño completo. Planta de noche con dos dormitorios dobles y un baño, y un dormitorio en suite con baño y vestidor. Zona de despensa-lavadero, y sala polivalente.
El espacio de salón, comedor y cocina cuenta con orientación sur, el cual se extiende en un espacio de terraza con la posibilidad de colocar una pérgola bioclimática en relación al jardín con piscina.

La cubierta será plana de tipología invertida con acabado de grava la fachada contará con cámara de aire y aislamiento térmico, las carpinterías exteriores serán de aluminio anodizado o lacado con rotura de puente térmico, el acristalamiento será de doble vidrio con cámara de aire deshidratado tipo “Climalit” y con tratamiento bajo emisivo. Se colocarán persianas enrollables motorizadas.
Distribución interior a partir de estructura metálica de 70mm de espesor, con placa de yeso laminado de 15mm en cada cara, siendo hidrofuga en las zonas húmedas. Falso techo continuo con placas de cartón-yeso acabado en pintura lisa en toda la vivienda. Las carpinterías interiores son de madera monoblock lacadas acabado liso de color blanco.
El pavimento interior será de gres porcelánico de 60x60cm dando continuidad al exterior. El interior de la vivienda se pintará de color blanco. Las zonas húmedas serán alicatadas. Las escaleras interiores serán de peldaños de gres.
Cocina y baños completamente equipados. Instalación de fontanería, saneamiento, ACS, electricidad, telecomunicaciones, climatización por bomba de aire, aerotermia y posibilidad placas fotovoltaicas.

